|
Bharat City Ghaziabad is back with its new phase after the success of development of luxury residences in Ghaziabad. Bharat City Phase I-II is a chance to book luxury homes in Indraprastha Yojana. The residences in the Walled City are luxury homes in prime location available at affordable rates.
Bharat City Phase phase 2 Ghaziabad is created on the principle of "People First". The new tower launched offers options of 1 BHK, 2 BHK and 3 BHK , 4 BHK flats in floor plans of 635 sq. ft, 825 sq. ft., 1050 sq. ft., 1155 sq. ft., 1375 sq. ft. & 1475 sq. ft., 1520 sq. ft. & 1550 sq. ft. with. Enjoy amenities of Bharat City which grant bliss of good health, the peace of nature and the luxury of modern facilities of pleasure, entertainment and safety. Grab your chance to book flats in Bharat City Phase I-II Ghaziabad. Hurry and don't miss your chance of a luxury home which you can easily afford. Bharat City Ghaziabad Phase I-II : 1/ 2 /3 /4 BHK Personal Apartments BCC present Bharat City (Housing Cityship) in Indraprastha Yojna Ghaziabad. After Great Achievements of Past Systems, Bharat City release New Systems...
|
||||||||||||||||||||
| Bharat City is an Indraprastha Yojana in Ghaziabad near Hinddon Airbase. Bharat City Ghaziabad is an excellent township enclosed in expansive veggies, which is a complete evade for your emotions, prepared with the most modern benefits. Bharat City is a township inspired by the perspective of 'People First'. A personal group distribute over 50 miles, Bharat City is one of the best future City-ships in Delhi / NCR." It is Indraprastha Yojana the greatest personal projects at, Ghaziabad and provides 5000 models with several choices in sizes and layouts to experience the authentic joy of residing. Bharat City provides you 2 /3BHK designer flats with an position of 50 miles, located at the part point of Hinddon Airbase. Bharat City Ghaziabad provides the greatest range of features for everyone. People will have practical accessibility institutions, medical care features, public activities, activities places, buying and enjoyment features. All as well as the famous Bharat Team, Cricket practice message, Several delightful bistro, Practical buying, Grocery store, large start playing position, Older recreation place, Sports complicated, Walking track, Mud pit, Amphitheater, Tennis test, Basketball & Beach football test, in fact Bharat City is the only complicated providing night game complicated in Indian. Bharat City Ghaziabad will be one of the greatest continually-evolving city conditions. Apart from all these benefits, we are also providing lot of choices in our flats so that you can style your home according to you and of your choices. The Bharat City is a natural township and includes all necessary physical & public features elements, thus provides the idea of a "WALLED CITY". The program has been designed generally by considering the opportunities and the complications of the website with a maintainable and environmental helpful land use. About BCC Group: The BCC group has developed the nation's sky line both in terms of residential and commercial qualities in Delhi & NCR place. We are based out of Delhi and have about 6.5 thousand sq.ft. of under growth projects, and 2.5 thousand sq.ft. position has been already developed in our collection. As a major designer, in our last 30 years, we have effectively achieved our assures with quality growth across our all projects. |
| Special Features | ||||||||||||||||||||
|
| Structure - Earthquake resistance RCC frame structure as per
Seismic Zone - V with latest formwork technique Living / Dining, Master Bedroom & Other Bedrooms :
|
||||||||||||||||||||
| Kitchen : | ||||||||||||||||||||
|
||||||||||||||||||||
| Toilet (Master Bedroom & Other Bedrooms) : | ||||||||||||||||||||
|
||||||||||||||||||||
| External Facade Finish : | ||||||||||||||||||||
|
||||||||||||||||||||
| Others : | ||||||||||||||||||||
|
Type 5 - 1 BHK + 1 Toilet
Total Area - 635 sq. ft.
2 BHK + W.C. + 2 BATH
Total Area - 825 sq. ft.
Type 3 - 2 BHK + 2 Toilet(2 BHK)
Total Area - 1050 sq. ft.
2 BHK + 2 Toilet + Study
Total Area - 1155 sq. ft.
Type 2 - 3 BHK + 2 Toilet(3BHK)
Total Area - 1375 sq. ft.
Type 1 - 3 BHK + 3 Toilet(3BHK(B))
Total Area - 1475 sq. ft.
TYPE A - 1 BHK + 1 Toilet
Total Area - 630 sq. ft.
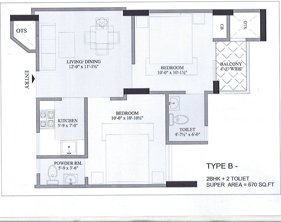
TYPE B - 2 BHK + 2 Toilet
Total Area - 670 sq. ft.
TYPE C - 2 BHK + 2 Toilet
Total Area - 800 sq. ft.
2 BHK + 2 Toilet + Utility + 2 Balcony
Saleable Area - 940 sq. ft.
2 BHK + 2 Toilet + Utility + 2 Balcony
Saleable Area - 965 sq. ft.
2 BHK + 2 Toilet + Utility + 2 Balcony
Saleable Area - 1120 sq. ft.
2 BHK + 2 Toilet + Utility + Study + 2 Balcony
Saleable Area - 1200 sq. ft.
3 BHK + 2 Toilet + Utility + 3 Balcony
Saleable Area - 1265 sq. ft.
3 BHK + 2 Toilet + Utility + 4 Balcony
Saleable Area - 1290 sq. ft.
3 BHK + 3 Toilet + Utility + 3 Balcony
Saleable Area - 1520 sq. ft.
3 BHK + 3 Toilet + Utility + 4 Balcony
Saleable Area - 1550 sq. ft.



